Construcción Modular
Modularhaus Mallorca
Niedrigenergiehaus Spanien
Schlüsselfertig Bauen Spanien
Hausbau Balearen Mallorca
MARBELLA
AcerOscuro Modulhaus
Camino del Higueral, 16
E-29679 Benahavís (Málaga)
Casas Modulares en Acero Sostenibles - Minimalistas
TURISMO MALLORCA
MALLORCA
AcerOscuro Modulhaus
Calle Traginers s/n (Pol. Industrial Lloseta)
E-07360 Lloseta (Mallorca)
Tel.: +34 605 29 71 80
Tel.: +34 620 00 16 42
info@aceroscuro.es
N.I.F: X3044134S / ESX3044134S

Building Project SENCELLES Mallorca
Copyright AcerOscuro 2025 - Cookie Policy - Terms and Conditions
LLAVE EN MANO - A MEDIDA - PREFABRICADA
Casas modulares, sostenibles, pasivas en la Isla de Mallorca, Barcelona,
Tarragona, Girona…
“DESCUBRE LAS VENTAJAS DE LA ARQUITECTURA ALTAMENTE SOSTENIBLE”
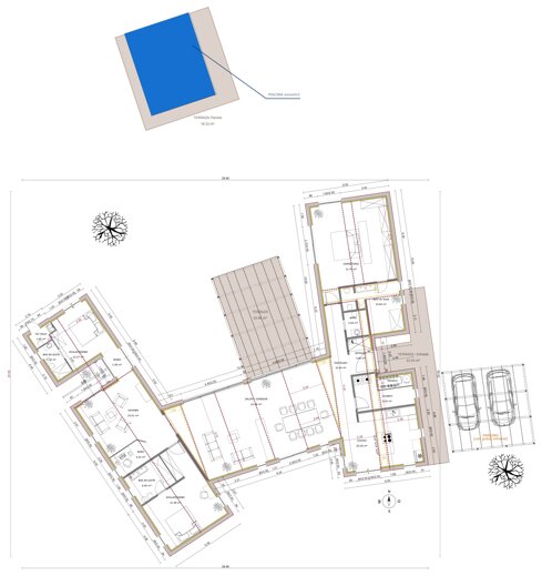
BUILDING PROJECT SENCELLES
On an app. 20.000sqm rural plot / finca with spectacular views over the lovely landscape, we started building this fantastic mediterranean styled luxury home.
This 1-storey villa has several en suite bedrooms, patios, pool etc. A 200m private driveway connected the villa with the bordering country road.
TOTAL CONSTRUCTION (incl. Pool & Garage): app. 400sqm
PROMOTOR: Privat
ARCHITECT: AcerOscuro Modulhaus
UBICATION: SENCELLES

.jpeg)
BUILDING INFORMATION
Production started in Lloseta / Mallorca…



Visits are posible by prior appointments (weekend as well…)
Location; AcerOscuro Modulhaus Mallorca C/Traginers s/n (Industriegebiet) E-07360 Lloseta / Mallorca