Construcción Modular Mallorca
Modularhaus Mallorca
Niedrigenergiehaus Spanien
Schlüsselfertig Bauen Mallorca
Hausbau Balearen Mallorca
MARBELLA
AcerOscuro Modulhaus
Camino del Higueral, 16
E-29679 Benahavís (Málaga)
Casas Modulares en Acero Sostenibles - Minimalistas
TURISMO MALLORCA
MALLORCA
AcerOscuro Modulhaus
Calle Traginers s/n (Pol. Industrial Lloseta)
E-07360 Lloseta (Mallorca)
Tel.: +34 605 29 71 80
Tel.: +34 620 00 16 42
info@aceroscuro.es
N.I.F: X3044134S / ESX3044134S
by Ramón de la Asunción
A R Q U I T E C T O
.jpeg)
Copyright AcerOscuro 2026 - Cookie Policy - Terms and Conditions
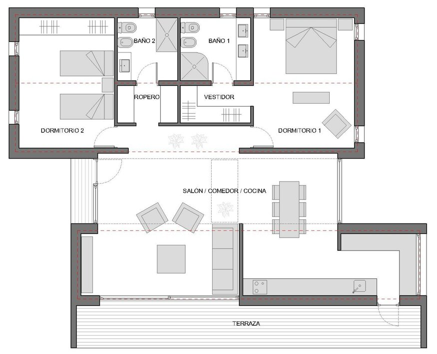
Esta vivienda se concibe desde una arquitectura horizontal, abierta al cielo y al paisaje, pensada para parcelas amplias donde el espacio exterior forma parte esencial del habitar. El proyecto se desarrolla en una sola planta, favoreciendo una relación directa y continua entre los espacios interiores, los porches y el jardín, sin jerarquías ni recorridos forzados.
La organización gira en torno a un ámbito central de mayor altura, donde la luz natural desciende desde ventanas de techo y marca el corazón de la vivienda. Este espacio actúa como lugar de encuentro, articulando las estancias y aportando una sensación de amplitud y calma. La materia acompaña esta idea: la madera envuelve el exterior casi en su totalidad y, en la zona central, se introduce en el interior, reforzando la continuidad entre dentro y fuera.
El resultado es una casa serena y luminosa, donde la arquitectura se posa sobre el terreno con discreción. Una vivienda pensada para vivir despacio, abierta al cielo de Mallorca, donde la luz, la textura y el silencio construyen la verdadera experiencia del espacio.
Villa Estel de L´Alba
2x dormitorios / 2x baños
376.000 EUROS
Precio más I.V.A. (10%)
DATOS DE LA CASA:
CALEFACCIÓN / CLIMATIZACIÓN: Suelo radiante (frío / calor), Fachada Ventilada, Ventilación Forzada
EXTRAS: Galeria de cristal
CONSTRUCCIÓN TOTAL: app. 125m2
VIVIENDA: app. 125m2 / app. 105m2 útiles
PISCINA: +25.000 Euros
CARPORT: + 18.000 Euros
INCLUIDO:
Proyectos, Géstion Licencia de Obra, Estudios / Informes, Cimentación (en solar plano),
Casa LLAVE EN MANO







¿INTERÉS DESPERTADO?
CONTACTENOS AHORA…
AcerOscuro Modulhaus
Construimos en Mallorca, Ibiza y Marbella