Construcción Modular Mallorca
Modularhaus Mallorca
Niedrigenergiehaus Spanien
Schlüsselfertig Bauen Mallorca
Hausbau Balearen Mallorca
MARBELLA
AcerOscuro Modulhaus
Camino del Higueral, 16
E-29679 Benahavís (Málaga)
Casas Modulares en Acero Sostenibles - Minimalistas
TURISMO MALLORCA
MALLORCA
AcerOscuro Modulhaus
Calle Traginers s/n (Pol. Industrial Lloseta)
E-07360 Lloseta (Mallorca)
Tel.: +34 605 29 71 80
Tel.: +34 620 00 16 42
info@aceroscuro.es
N.I.F: X3044134S / ESX3044134S
by Ramón de la Asunción
A R Q U I T E C T O
.jpeg)
Copyright AcerOscuro 2026 - Cookie Policy - Terms and Conditions
Esta vivienda se concibe como una arquitectura compacta y precisa, pensada para adaptarse a parcelas estrechas características de los núcleos urbanos de Mallorca.
El proyecto se organiza desde la claridad y la eficiencia, buscando aprovechar al máximo el ancho disponible sin renunciar a la luz, la continuidad espacial ni la relación con el exterior.
En planta baja, los espacios de día se desarrollan de forma longitudinal, generando una secuencia fluida entre salón, cocina y comedor.
La escalera, integrada en el propio espacio y no como un elemento independiente, acompaña el recorrido cotidiano y refuerza la continuidad interior. Las aperturas se disponen de manera medida, permitiendo que la luz atraviese la vivienda y marque el ritmo del habitar.
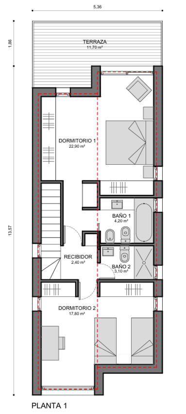
En la planta superior, la zona de descanso se organiza de forma serena, con una terraza que prolonga la vida interior hacia el exterior.
La arquitectura mantiene el diálogo entre superficies claras y texturas naturales, aportando calidez y profundidad sin excesos. El resultado es una vivienda contenida y equilibrada, donde cada gesto responde a la escala del lugar y a una manera tranquila de habitar el espacio.
Villa Hamnet
2x dormitorios / 2+1 baños
446.000 EUROS
Precio más I.V.A. (10%)
DATOS DE LA CASA:
CALEFACCIÓN / CLIMATIZACIÓN: Suelo radiante (frío / calor), Fachada Ventilada, Ventilación Forzada
EXTRAS: Piscina Infinity incluido
CONSTRUCCIÓN TOTAL: app. 180m2
VIVIENDA: app. 137m2 / app. 105m2 útiles
CARPORT: + 18.000 Euros
INCLUIDO:
Proyectos, Géstion Licencia de Obra, Estudios / Informes, Cimentación (en solar plano),
Casa LLAVE EN MANO


.jpeg)
.jpeg)
.jpeg)



¿INTERÉS DESPERTADO?
CONTACTENOS AHORA…
AcerOscuro Modulhaus
Construimos en Mallorca, Ibiza y Marbella