Construcción Modular Mallorca
Modularhaus Mallorca
Niedrigenergiehaus Spanien
Schlüsselfertig Bauen Mallorca
Hausbau Balearen Mallorca
MARBELLA
AcerOscuro Modulhaus
Camino del Higueral, 16
E-29679 Benahavís (Málaga)
Casas Modulares en Acero Sostenibles - Minimalistas
TURISMO MALLORCA
MALLORCA
AcerOscuro Modulhaus
Calle Traginers s/n (Pol. Industrial Lloseta)
E-07360 Lloseta (Mallorca)
Tel.: +34 605 29 71 80
Tel.: +34 620 00 16 42
info@aceroscuro.es
N.I.F: X3044134S / ESX3044134S

Copyright AcerOscuro 2026 - Cookie Policy - Terms and Conditions
LLAVE EN MANO
Proyecto Básico, Proyecto Ejecutivo, Gestión Licencia de Obra, Arquitectos, Fundamentación
¡INCLUIDO EN EL PRECIO!
CARPORT para 2x coches app. 30m2
+ 18.000 Euros
PISCINA
Piscina de app. 6x4.8m / 12x 2.4m
+ 25.000 Euros
Bungalow
LLOSETA
a partir de 204.600 Euros
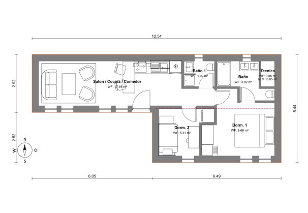
app. 53m2 / app. 53m2 Casa / 2x dormitorios / 2x baños




.jpeg)
.jpeg)
.jpeg)
Bungalow en un estilo moderno minimalista, espacios abiertas y luminosos, trastero.
Casa “pasiva” con fachada ventilada, ventilación forzado con recuperación de calor, AEROTERMÍA para agua caliente, calefacción & climatización, suelo / techo radiante, ventanas panorámicas con mallorquinas deslizantes eléctricas, baños de diseño, suelos laminadas…
PRECIO: 204.600 Euros más I.V.A (10%)
Incluido: Proyectos, Arquitectos, Estudios, Gestion Licencia de Obra, Fundamentación en terreno llano, transporte y montaje
Construcción TOTAL: app. 53m2
Construcción CASA: app. 53m2
Espacio útiles CASA: app. 39m2
Dormitorios: 2 Baños: 2
Terrazas en WPC: cargo adicional!





