Construcción Modular Mallorca
Modularhaus Mallorca
Niedrigenergiehaus Spanien
Schlüsselfertig Bauen Mallorca
Hausbau Balearen Mallorca
MARBELLA
AcerOscuro Modulhaus
Camino del Higueral, 16
E-29679 Benahavís (Málaga)
Casas Modulares en Acero Sostenibles - Minimalistas
TURISMO MALLORCA
MALLORCA
AcerOscuro Modulhaus
Calle Traginers s/n (Pol. Industrial Lloseta)
E-07360 Lloseta (Mallorca)
Tel.: +34 605 29 71 80
Tel.: +34 620 00 16 42
info@aceroscuro.es
N.I.F: X3044134S / ESX3044134S

Copyright AcerOscuro 2026 - Cookie Policy - Terms and Conditions
LLAVE EN MANO
Proyecto Básico, Proyecto Ejecutivo, Gestión Licencia de Obra, Arquitectos, Fundamentación
¡INCLUIDO EN EL PRECIO!
CARPORT para 2x coches
+ 18.000 Euros
¡PISCINA app. 12x2.44m
+ 25.000 Euros
Modelo
FINCA SENCELLES
a partir de 682.200 Euros
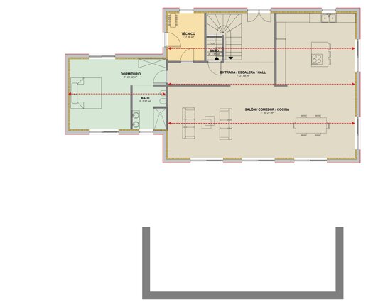
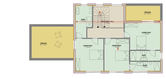
app. 310m2 / app. 310m2 Casa / 4x dormitorios




.jpeg)

.jpeg)
Finca / Villa en un estilo mallorquín contemporáneo, amplia terraza en primera planta, 4 dormitorios en Suite, aseo, espacios luminosos…
Casa “pasiva” con fachada ventilada, ventilación forzado con recuperación de calor, AEROTERMÍA para agua caliente, calefacción & climatización, suelo / techo radiante, ventanas panorámicas con mallorquinas eléctricas, baños de diseño, suelos laminadas…
PRECIO: 582.200 Euros más I.V.A (10%)
Incluido: Proyectos, Arquitectos, Estudios, Gestion Licencia de Obra, Fundamentación en terreno llano, transporte y montaje
Construcción TOTAL: app. 310m2
Construcción CASA: app. 310m2
Espacio útiles CASA: app. 222m2
Terrazas 1ra planta en WPC: app. 38m2
Dormitorios: 4 Baños: 4+1
Terrazas en WPC: cargo adicional!





