Construcción Modular Mallorca
Modularhaus Mallorca
Niedrigenergiehaus Spanien
Schlüsselfertig Bauen Mallorca
Hausbau Balearen Mallorca
MARBELLA
AcerOscuro Modulhaus
Camino del Higueral, 16
E-29679 Benahavís (Málaga)
Casas Modulares en Acero Sostenibles - Minimalistas
TURISMO MALLORCA
MALLORCA
AcerOscuro Modulhaus
Calle Traginers s/n (Pol. Industrial Lloseta)
E-07360 Lloseta (Mallorca)
Tel.: +34 605 29 71 80
Tel.: +34 620 00 16 42
info@aceroscuro.es
N.I.F: X3044134S / ESX3044134S

Copyright AcerOscuro 2026 - Cookie Policy - Terms and Conditions
LLAVE EN MANO
Proyecto Básico, Proyecto Ejecutivo, Gestión Licencia de Obra, Arquitectos, Fundamentación
¡INCLUIDO EN EL PRECIO!
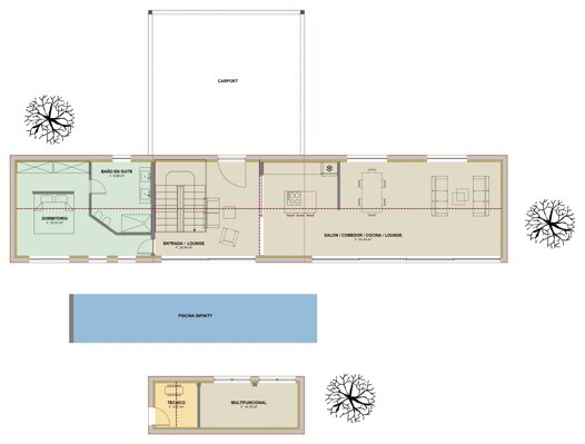
CARPORT para 2x coches INCLUIDO!
PISCINA app. 12x2.44m
+ 25.000 Euros
Modelo
ESPIGON BALEAR
a partir de 624.000 Euros
app. 311m2 / app. 257m2 Casa / Carport / 3x dormitorios




.jpeg)
.jpeg)
.jpeg)
.jpeg)
Villa de diseño en un estilo moderno contemporáneo, lounge, dormitorio principal con vestidor, dormitorios en Suite, espacios luminosos, CARPORT para 2x coches…
Casa “pasiva” con fachada ventilada, ventilación forzado con recuperación de calor, AEROTERMÍA para agua caliente, calefacción & climatización, suelo / techo radiante, ventanas panorámicas con venecianas de aluminio eléctricas, baños de diseño, suelos laminadas…
PRECIO: 624.000 Euros más I.V.A (10%)
Incluido: CARPORT, Proyectos, Arquitectos, Estudios, Gestion Licencia de Obra, Fundamentación en terreno plano, transporte y montaje
Construcción TOTAL: app. 311m2
Construcción CASA: app. 257m2
Espacio útiles CASA: app. 214m2
Carport: app. 54m2
Dormitorios: 3 Baños: 3
Terrazas en WPC: cargo adicional!





